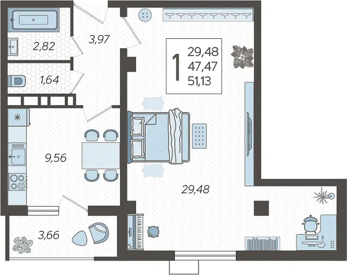
1-комнатные апартаменты №40, 51.13 м²

На плане этажа floor plan
На ген плане . liter genplan
ID53063 Название ЖК Режиссёр Срок сдачи: 2 квартал 2026
от 7 234 895
Рассчитать ипотеку
Подробнее
  • Корпус 4
  • Подъезд 3
  • Этаж 10
  • Общая площадь 51.13 м²
  • Жилая площадь 29.48 м²
  • Площадь кухни 10 м²
Все характеристики
Раздельный санузел Раздельный санузел
?

Инфраструктура

В шаговой доступности

infrastructure image
Расположение

5 минут на машине до школа №14

Расположение

7 минут на машине до поликлиники № 15

Расположение

8 минут на машине до детского сада № 167

Расположение

5 минут пешком до ТРЦ "СБС Мегамолл"

Посчитайте свою выгоду

* Приведенные расчеты носят предварительный характер. Окончательный расчет суммы кредита и размер ежемесячного платежа производятся банком после предоставления полного комплекта документов и проведения оценки платежеспособности клиента

Видео

Видео о жилом комплексе «Режиссёр»
Видео о районе ЖК «Режиссёр»
Не нашли подходящую планировку?
Мы поможем!

О жилом комплексе ЖК Режиссёр

Купить квартиру в жилом комплексе «Режиссёр» в Краснодаре — это выбрать современное и комфортное жильё по конкурентоспособной цене.


Расположенный в развитом районе, он станет местом притяжения жителей. Стильный облик в 21 этажа устремленный ввысь, в сочетании с развитой зоной торговых и офисных помещений на первых этажах жилого комплекса «Режиссёр» сделают район еще более развитым и комфортным. Соседство с крупными торговыми центрами, в том числе «СБС», детскими садами, школами, поликлиникой и парками добавят локации максимум удобства.


Жилой комплекс «Режиссёр» - оптимальное жилье для любой возрастной категории людей. Внутри комплекса – две больших зелёных придомовых территории с детскими площадками и прогулочной зоной. Рядом проходит одна из крупнейших транспортных магистралей города – улица Уральская, по которой можно выехать из города, на морское побережье, курорты или в близлежащие базы отдыха.


Район ХБК города Краснодара имеет отличное месторасположение – на личном или общественном транспорте можно быстро попасть в центральную часть города или другие районы.


«Режиссёр» от AVA - срежиссируй свою жизнь по собственному сценарию.

Понравилась планировка?

Сохраните ее, чтобы не потерять!

X
Нажимая кнопку «Согласен», Вы соглашаетесь на обработку персональных данных и использование куки-файлов, собираемых в том числе посредством метрической программы «Яндекс.Метрика», в соответствии с Политикой обработки персональных данных. Вы можете отключить куки-файлы в настройках своего браузера
Выбор города